Green Lane, Yarm

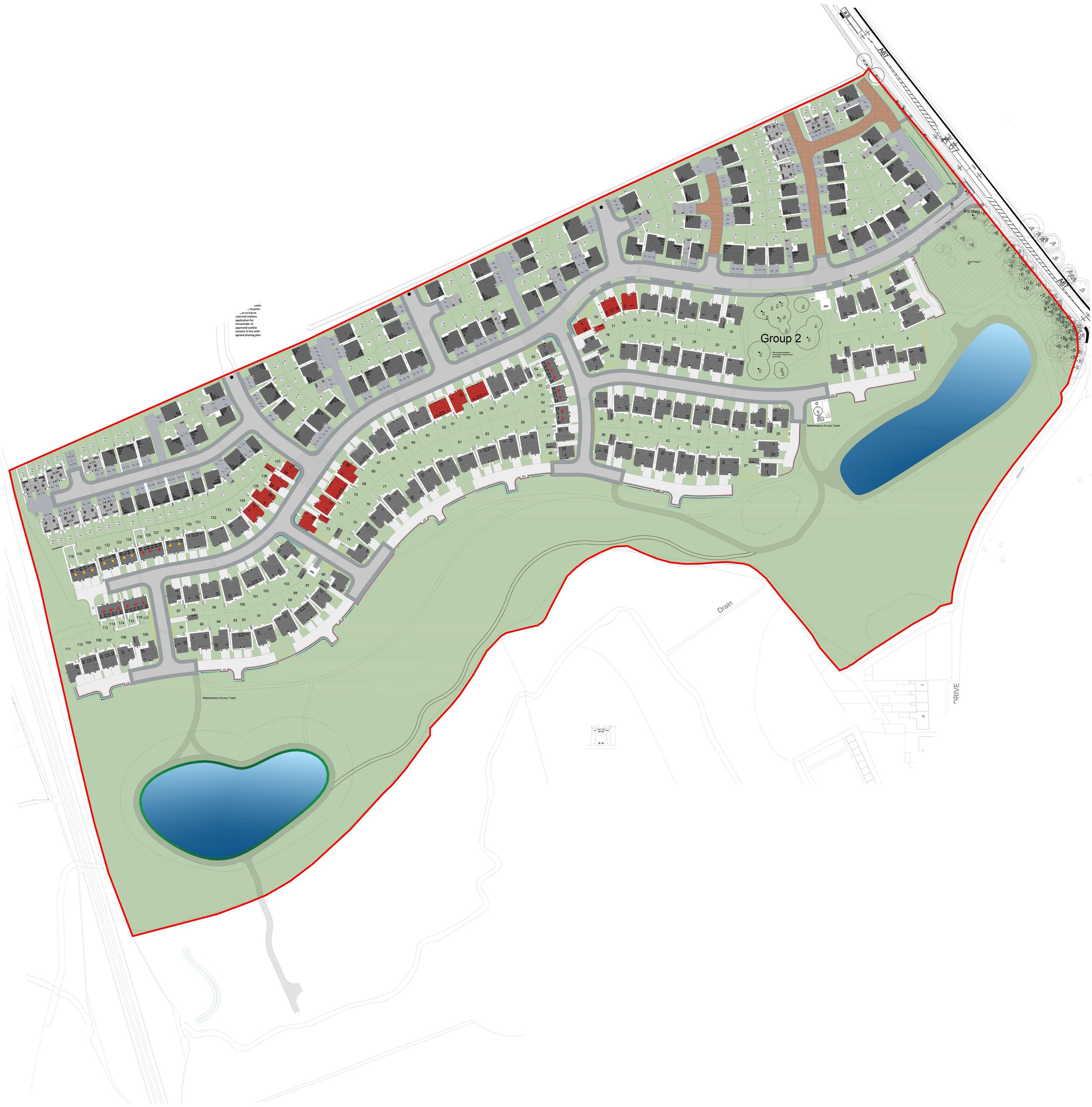
STEN Architecture delivered a high quality residential development for Banks Homes. Using a new range of housetype designs, created by STEN Architecture, the development has a contemporary character and attractive open space. Landscaping is an important feature of the neighbourhood creating meaningful opportunities for residents to access outdoor spaces.

Previous
Previous

Dark Lane, Calow

Next
Next

Hipperholme